
ГРУЗ 40 КГ В КОЛИЧЕСТВЕ 1 ШТ. ПОКУПАЕТСЯ ОТДЕЛЬНО
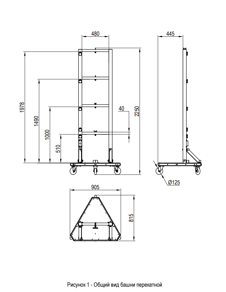
| Тип | Башня |
| Исполнение | Перекатная |
| Bec, кг | 45 |
| Размер штанги для приборов, михмм. | 40×40 |
| Длина одной штанги, мм. | 480 |
| Количество штанг для приборов, шт. | 4 |
| Количество розеток, шт. | 5 |
| Габариты башни BxLLx, мм | 2250×905×815 |